Choisir ce modèle Voir le catalogue
Espace client
Vous êtes ici :
Nouvelle recherche Cette annonce m'intéresse

Terrain à bâtir

Prix : 159 000,00 
Dont honoraires 9 000,00 € TTC inclus (6,00 %) à la charge de l'acquéreur, soit 150 000 € hors honoraires.
Type de bien : Terrain
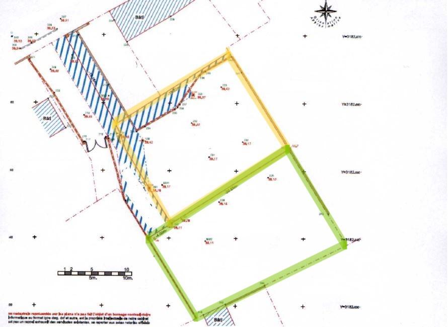
Surface : 376,00m²
Localité : Nîmes (30000)
Référence : 30006-340

Description du bien

Quartier des Amoureux à Nîmes: au calme et hors lotissement, terrain plat à bâtir de 376 m². Le terrain n'est pas situé en bordure de rue et la surface permet de réaliser une maison de plain-pied (150 m² d'emprise au sol possible). Possibilité d'agrandir votre jardin en achetant la parcelle voisine de plus de 300 m² également.

Mandat

Téléphone mandataire : +33672843178
E-mail mandataire : Veuillez utiliser le formulaire de contact ci-dessous ...
Négociateur : Julie QUERCY

Cette annonce m'intéresse

Captcha
* Les champs suivis d'un astérisque sont obligatoires.

Le renseignement des informations marquées d’un astérisque est obligatoire pour permettre le traitement de votre demande. Les autres champs, non obligatoires, ont pour seul objectif de préciser vos réponses. L’Office ci-après « Responsable de traitement », traite des données personnelles vous concernant pour le traitement de votre demande dans le cadre du formulaire de contact renseigné ci-dessus. Ce traitement est fondé sur l’intérêt légitime poursuivi par le responsable du traitement. Les données vous concernant sont conservées pour une durée n’excédant pas le traitement de votre demande. Vos données sont susceptibles de faire l’objet d’un transfert de données personnelles dans les pays dont le niveau de protection n’est pas reconnu comme équivalent par la Commission européenne. En absence de décision d’adéquation, ce transfert est encadré par des garanties adaptées ou approuvées par la Commission Européenne. Conformément à la réglementation, vous pouvez accéder aux données vous concernant. Le cas échéant, vous pouvez demander la rectification ou l’effacement de celles-ci, obtenir la limitation du traitement de ces données ou vous y opposer pour des raisons tenant à votre situation particulière. Ces droits peuvent être exercés directement auprès du Responsable de traitement ou de son Délégué à la protection des données à l’adresse suivante : cil@notaires.fr Si vous pensez, après nous avoir contactés, que vos droits ne sont pas respectés, vous pouvez introduire une réclamation auprès d’une autorité européenne de contrôle : la Commission Nationale de l’Informatique et des Libertés pour la France.
Pour plus d'information, veuillez consulter notre page d'informations relatives à la protection des données personnelles.
Navigateur non pris en charge

Le navigateur Internet Explorer que vous utilisez actuellement ne permet pas d'afficher ce site web correctement.

Nous vous conseillons de télécharger et d'utiliser un navigateur plus récent et sûr tel que Google Chrome, Microsoft Edge, Mozilla Firefox, ou Safari (pour Mac) par exemple.
OK